तपोवन वाचवा – नाशिक वाचवा
नाशिकच्या पवित्र, ऐतिहासिक आणि पर्यावरणीय वारशाचे संरक्षण
तपोवन (Tapovan, Nashik)
आज विकासाच्या नावाखाली नष्ट होण्याच्या मार्गावर आहे.
१८००+ झाडांची प्रस्तावित तोड म्हणजे
निसर्गावर, पर्यावरणावर आणि पुढील पिढ्यांवर केलेला अन्याय आहे.
हे राजकारण नाही.
हा नाशिककरांचा अस्तित्वाचा प्रश्न आहे.
आज नाही उभे राहिलो, तर उद्या उभे राहण्यासाठी तपोवन उरणार नाही.
तपोवन जन चळवळ: आज विकासाच्या नावाखाली नष्ट होण्याच्या मार्गावर आहे.
भारतीय अध्यात्म सांगते—तप म्हणजे त्याग, संयम आणि अंतर्मुखता; आणि वन म्हणजे निसर्गाशी असलेली अखंड नाळ. या दोन शब्दांच्या संयोगातून तयार झालेले तपोवन हे मानवी संस्कृतीचे सर्वोच्च शिखर आहे. येथे ऋषी-मुनींनी तपस्या केली, कारण त्यांना माहीत होते की निसर्गाच्या सान्निध्याशिवाय आत्मज्ञान मिळू शकत नाही. गोदावरीच्या काठाशी वसलेले नाशिकचे तपोवन हे केवळ धार्मिक विधींचे ठिकाण नाही, तर ते पिढ्यान्पिढ्या वाहत आलेल्या साधनेचे केंद्र आहे. येथे जप केला जातो, ध्यान केले जाते, मन शुद्ध होते आणि अहंकार विरघळतो. अशा पवित्र जागेवर जर आपण “विकास” या शब्दाचा मुखवटा चढवून घाव घालू लागलो, तर तो विकास नसून आध्यात्मिक दारिद्र्याची सुरुवात ठरेल. कारण ज्या समाजाकडे मंदिरे असतात पण शांत वन नसते, जिथे रस्ते रुंद असतात पण मन अरुंद असते, तिथे प्रगती दिसते पण समाधान हरवलेले असते. तपोवन तोडणे म्हणजे फक्त झाडे हटवणे नव्हे; ते म्हणजे ध्यानाची जागा उद्ध्वस्त करणे, साधनेचा वारसा तोडणे आणि भविष्यातील पिढ्यांना आध्यात्मिक शून्य देणे.
१८००+ झाडांची प्रस्तावित तोड म्हणजे
निसर्गावर, पर्यावरणावर आणि पुढील पिढ्यांवर केलेला गंभीर अन्याय आहे.
ही केवळ झाडांची लढाई नाही —
ही हवा, पाणी, आरोग्य, श्रद्धा आणि नाशिकच्या ओळखीची लढाई आहे.
तपोवन हे केवळ एक भूखंड नाही,
ते नाशिककरांचे फुफ्फुस आहे, संस्कृतीचा वारसा आहे
आणि भावी पिढ्यांसाठीचा नैसर्गिक ठेवा आहे.
आज विकासाच्या नावाखाली विनाश घडवला जात आहे.
पर्यावरणपूरक, लोकाभिमुख आणि शाश्वत विकासाला डावलून
फक्त ठेकेदार आणि राजकीय फायद्यासाठी निर्णय लादले जात आहेत.
ही लढाई कोणत्याही एका संघटनेची नाही,
ही सामान्य नाशिककरांची जनचळवळ आहे.
हे राजकारण नाही.
हा नाशिककरांच्या अस्तित्वाचा प्रश्न आहे. आज आपण शांत राहिलो, तर उद्या आपली मुले आपल्याला विचारतील –
“तपोवन वाचवताना तुम्ही कुठे होता?”
आज नाही उभे राहिलो,
तर उद्या उभे राहण्यासाठी तपोवनच उरणार नाही.
👉 म्हणूनच
• प्रत्येक नागरिकाचा सहभाग महत्त्वाचा आहे
• प्रत्येक आवाज प्रशासनापर्यंत पोहोचणे गरजेचे आहे
• शांततामय, लोकशाही मार्गाने पण ठामपणे विरोध नोंदवणे आवश्यक आहे
तपोवन वाचवा – नाशिक वाचवा आज नाही तर कधीच नाही!
स्थान
नाशिक जिल्हा, महाराष्ट्र, भारत
मुख्य वैशिष्ट्ये
वनक्षेत्र, ध्यानधारणा स्थळे, आश्रम व मंदिरे
धार्मिक संदर्भ
रामायणातील तपोवन प्रसंगाशी संबंधित
लोकप्रियता
निसर्गभ्रमंती, नदीकाठ दृश्ये, आध्यात्मिक निवांतता
पौराणिक व सांस्कृतिक पार्श्वभूमी
हिंदू परंपरेनुसार, तपोवन हे वनवास काळात प्रभू श्रीराम, माता सीता व लक्ष्मण यांनी वास्तव्य केलेले वन मानले जाते, तसेच येथेच राम–शूर्पणखा भेटीचा प्रसंग घडल्याचा उल्लेख आहे. या कारणामुळे नाशिकचे तपोवन रामायण परिक्रमा मार्गातील एक महत्त्वाचे स्थान ठरते. परिसरात या घटनांची आठवण करून देणारी अनेक मंदिरे व आश्रम आहेत आणि पंचवटी भागातील धार्मिक यात्रांमध्ये याचा समावेश केला जातो.
पर्यावरण व पर्यटन
तपोवन हे नाशिक शहरातील एक अत्यंत महत्त्वाचे हिरवे जैव–परिसर (Green Ecological Zone) असून येथे स्थानिक व देशी वनस्पती, औषधी झाडे, वेलीं तसेच विविध पक्षी, कीटक, सस्तन व जलचर प्राण्यांचे नैसर्गिक वैविध्य आढळते. हे क्षेत्र शहरीकरणाच्या वाढत्या दडपणातही निसर्गाचा समतोल राखणारे नैसर्गिक बफर झोन म्हणून कार्य करते. मोठ्या प्रमाणावर असलेली झाडे तापमान नियंत्रण, हवामानातील आर्द्रता, कार्बन शोषण आणि शहरातील प्रदूषण कमी करण्यासाठी महत्त्वाची भूमिका बजावतात. त्यामुळे तपोवन हे नाशिक शहराचे ‘ग्रीन लंग्स’ मानले जाते.
कपिला नदी आणि गोदावरी नदी यांच्या संगमाच्या सान्निध्यामुळे तपोवन परिसराला विशेष पर्यावरणीय व आध्यात्मिक महत्त्व प्राप्त झाले आहे. नदीकाठचा ओलसर प्रदेश (Riparian Zone) अनेक दुर्मिळ वनस्पती आणि पक्ष्यांसाठी आदर्श अधिवास निर्माण करतो. स्थलांतरित पक्षी, जलपक्षी, फुलपाखरे आणि मधमाशा यांची येथे मोठ्या प्रमाणावर उपस्थिती दिसून येते, जी पर्यावरणीय समतोलाचे द्योतक आहे. या नैसर्गिक रचनेमुळे ध्यान, योग, निसर्गनिरीक्षण (Bird Watching), आणि शांततेचा अनुभव घेण्यासाठी तपोवन एक आदर्श ठिकाण ठरते.
पर्यटनदृष्टीने तपोवन हे इको–टुरिझम (Eco-Tourism) साठी मोठी संधी आहे. येथे नियंत्रित व पर्यावरणपूरक पद्धतीने
– नेचर ट्रेल्स (Nature Trails)
– निसर्ग मार्गदर्शित फेरफटका
– जैवविविधता अभ्यास सहली
– शालेय व महाविद्यालयीन पर्यावरण शिक्षण कार्यक्रम
– योग–ध्यान शिबिरे
असे उपक्रम राबवता येऊ शकतात. यामुळे रोजगारनिर्मिती, स्थानिक अर्थव्यवस्थेला चालना आणि पर्यावरण संवर्धन यांचा समतोल साधता येऊ शकतो. मोठ्या सिमेंट संरचना उभारण्याऐवजी लो–इम्पॅक्ट, निसर्गपूरक पर्यटन हेच या परिसरासाठी योग्य ठरू शकते.
सण–उत्सवांच्या काळात तपोवन परिसरात धार्मिक कार्यक्रम, नदीपूजन, जप–तप आणि सांस्कृतिक उपक्रम मोठ्या प्रमाणावर होतात. तसेच दररोज सकाळी आणि संध्याकाळी फेरफटका, व्यायाम, ध्यान आणि कुटुंबासोबत वेळ घालवण्यासाठी हजारो स्थानिक नागरिक येथे येतात. त्यामुळे तपोवन हे केवळ पर्यावरणीय किंवा पर्यटनस्थळ नसून, सामाजिक, सांस्कृतिक आणि मानसिक आरोग्याचे केंद्र बनले आहे.
पोहोच व जवळील आकर्षणे
आमचे आंदोलन नेमके काय आहे?
तपोवन संदर्भात सुरू असलेले आमचे आंदोलन हे कोणत्याही व्यक्तीविरोधात, पक्षविरोधात किंवा विकासविरोधात नाही. हे आंदोलन निसर्ग, संस्कृती आणि लोकशाही मूल्यांचे संरक्षण करण्यासाठी आहे. आमची भूमिका स्पष्ट आणि ठाम आहे—विकास हवा, पण तो विनाशाच्या किंमतीवर नको.
दिनांक ११ नोव्हेंबर २०२५ रोजी नाशिक महानगरपालिका यांनी वृक्ष संरक्षण अधिनियम १९७५, कलम ८(२) अंतर्गत तपोवन–साधुग्राम परिसरातील एकूण १८०० झाडांची तोड प्रस्तावित असल्याची नोटीस थेट झाडांवर लावली. ही बाब नागरिक, पर्यावरणप्रेमी व स्थानिक संघटनांच्या निदर्शनास येताच तीव्र प्रतिक्रिया उमटली. या निर्णयाविरोधात मोठ्या प्रमाणावर हरकती नोंदविण्यात आल्या आणि हरकती सादर करण्याच्या अंतिम मुदतीस अवघा एक दिवस शिल्लक असताना ९०० हून अधिक लेखी हरकती महानगरपालिकेकडे दाखल करण्यात आल्या.
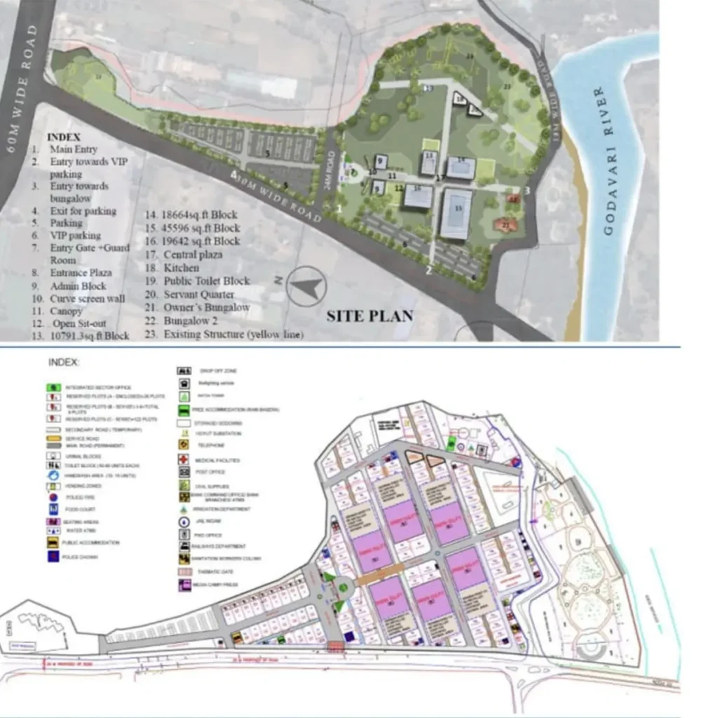
हे प्रकरण अद्याप विचाराधीन असतानाच एक अत्यंत गंभीर बाब समोर आली. तपोवन परिसरातील वृक्ष हटवून त्या जागेवर MICE (Meetings, Incentives, Conferences and Events) हब उभारण्यासाठी सुमारे ₹२२० कोटींची निविदा महानगरपालिकेने काढल्याचे उघडकीस आले. या प्रस्तावानुसार एकूण उरलेल्या ५४ एकर क्षेत्रापैकी तब्बल ३५ एकर क्षेत्रावर, म्हणजेच तपोवनाच्या मध्यभागी, मोठ्या प्रमाणावर सिमेंटयुक्त बांधकाम होणार असून त्यामुळे हा संपूर्ण परिसर “सिमेंटचे जंगल” बनण्याची ठळक आणि वास्तववादी भीती निर्माण झाली.
या सर्व घटनांमुळे तपोवनाबाबतचा प्रश्न केवळ वृक्षतोडीपुरता मर्यादित राहिला नाही, तर तो अधिक व्यापक आणि गंभीर स्वरूपात पुढे आला. पर्यावरणीय हानी, पौराणिक व सांस्कृतिक वारशाच्या ऱ्हासाचा धोका, तसेच लोकसहभाग आणि पारदर्शकतेचा अभाव असलेली निर्णयप्रक्रिया—या सर्व बाबींविरोधात नागरिकांमध्ये तीव्र असंतोष निर्माण झाला. परिणामी, तपोवन जनचळवळ अधिक परखड, संघटित आणि ठामपणे उभी राहिली असून, या निर्णयांना शांततामय पण निर्णायक पद्धतीने विरोध नोंदवण्याची भूमिका अधिक मजबूत झाली आहे.
झाडांवर लावलेली नोटीस
MICE PLAN:
साधुग्राम नकाशा
थोडक्यात मुद्दे
रामायणकालीन दंडकारण्याचा अविभाज्य भाग
गोदावरी काठावरील पवित्र तपस्याभूमी
नाशिक शहराचे नैसर्गिक फुफ्फुस
जैवविविधतेने समृद्ध हरित क्षेत्र
सांस्कृतिक, आध्यात्मिक आणि ऐतिहासिक वारसा
आमच्या मागण्या
आमच्या मागण्या पूर्णपणे स्पष्ट, ठाम आणि पर्यावरणाच्या हितासाठी आहेत—
नाशिक जिल्ह्यात तसेच तपोवन परिसरात सुरू असलेल्या अंधाधुंद वृक्षतोडीला तात्काळ आणि पूर्ण स्थगिती देण्यात यावी.
महाकुंभाशी संबंधित सर्व प्रस्तावित व सुरू असलेल्या विकासकामांचे पर्यावरणीय परिणाम लक्षात घेऊन सखोल व पारदर्शक पुनरावलोकन करण्यात यावे.
MICE हबचा प्रकल्प तपोवन परिसरातून तत्काळ अन्य पर्यायी व योग्य ठिकाणी स्थलांतरित करण्यात यावा.
तपोवन परिसराचे त्याच्या मूळ नैसर्गिक व पर्यावरणीय विस्तारासह संरक्षण करून, तो ‘रिझर्व्हड फॉरेस्ट’ म्हणून अधिकृतपणे अधिसूचित करण्यात यावा.
नदीकाठांवरील सर्व अतिक्रमणे हटवून नद्यांचा नैसर्गिक प्रवाह, परिसंस्था व जैवविविधता पुनर्स्थापित करण्यात यावी.
कायमस्वरूपी काँक्रीटीकरणाचा मार्ग टाळून, पर्यावरणपूरक, तात्पुरते, परत हटवता येणारे व निसर्गाशी सुसंगत पर्याय स्वीकारण्यात यावेत.
आजचा धोका
तपोवन धोक्यात आहे! - ठळक मुद्दे
❌ १८००+ झाडे तोडण्याचा प्रस्ताव
❌ नागरिकांशी चर्चा न करता निर्णय
❌ नाशिकच्या पर्यावरणावर दीर्घकालीन परिणाम
वृक्षतोडीस प्रशासनाला ई-मेल द्वारे विरोध नोंदवा नागरिकांचे – निसर्गासाठी – राजकारणापलीकडील आंदोलन मजकूर
हे आंदोलन कोणत्याही पक्षाचे नाही.
हे नाशिककरांचे आहे.
पर्यावरणप्रेमी, अभ्यासक, इतिहासतज्ज्ञ आणि सामान्य नागरिक एकत्र येऊन तपोवनाचे संरक्षण करत आहेत.
तपोवन धोक्यात आहे! - ठळक मुद्दे
तीन पर्याय
तीन पर्याय
स्वयंसेवक बना – मैदानावर, संशोधनात, जनजागृतीत
आवाज पसरवा – सोशल मीडिया, समाज, मित्रपरिवार
बौद्धिक व कायदेशीर मदत – RTI, दस्तऐवजीकरण

